Listing Details

For more information on this listing or other please contact me.

Courtesy of Mozaic Realty Group.
Data was last updated 2025-06-25 at 20:18:11 GMT

10352/10354 147 Street   Edmonton, Alberta

$1,499,900
MLS®: E4477391
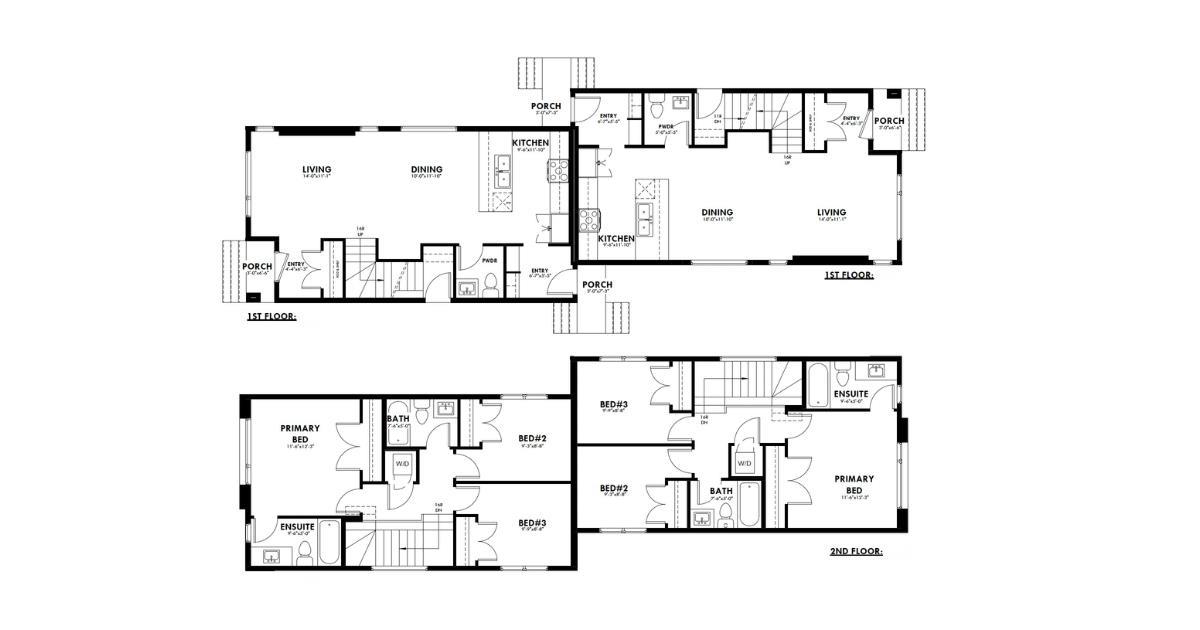
Rare 5 suite opportunity in the prime community of Grovenor. This brand new front-to-back duplex features TWO 3 bed / 2.5 bath main floor units, TWO 2 bed / 1 bath basement suites, and ONE fully self-contained 2 bed / 1 bath garage suite. Designed with functional layouts, modern finishes, and two single detached garages to support strong rental appeal. Built by NDura Developments, one of Edmonton?s premier infill builders, known for quality craftsmanship and thoughtful design. Delivered fully turnkey with appliances, landscaping, and blinds included, allowing for immediate occupancy or rental income. Located walking distance to the Valley Line West LRT and minutes to Downtown, Misericordia Hospital, schools, shopping, and the River Valley. Qualifies for CMHC MLI Select financing. Ideal for investors, house-hackers, or buyers looking to offset their mortgage with multiple income-generating suites.

Rare 5 suite opportunity in the prime community of Grovenor. This brand new front-to-back duplex features TWO 3 bed / 2.5 bath main floor units, TWO 2 bed / 1 bath basement suites, and ONE fully self-contained 2 bed / 1 bath garage suite. Designed with functional layouts, modern finishes, and two single detached garages to support strong rental appeal. Built by NDura Developments, one of Edmonton?s premier infill builders, known for quality craftsmanship and thoughtful design. Delivered fully turnkey with appliances, landscaping, and blinds included, allowing for immediate occupancy or rental income. Located walking distance to the Valley Line West LRT and minutes to Downtown, Misericordia Hospital, schools, shopping, and the River Valley. Qualifies for CMHC MLI Select financing. Ideal for investors, house-hackers, or buyers looking to offset their mortgage with multiple income-generating suites.

Listing Information

Prop. Type:
Duplex
Property Style:
2 Storey
Status:
Active
City:
Edmonton
MLS® Number:
E4477391
Bedrooms:
5
Neighbourhood:
Grovenor
Area:
Edmonton
Province:
Alberta
Listing Price:
$1,499,900

General Information

Year Built:
2025
Total Square Feet:
3160ft2

Additional Information

Basement Dev:
Full, Finished
Parking:
Single Garage Detached, See Remarks

VIP-Only Information

Sign-Up or Log-in to view full listing details:
Sign-Up / Log In
This property is listed by Mozaic Realty Group and provided here courtesy of Anna Trojanowicz. For more information or to schedule a viewing please contact Anna Trojanowicz.
Anna Trojanowicz
RealPageMaker Support
Phone: 780-232-0855
Mobile Phone: 780-232-0855
Inquire Via Email
Data is deemed reliable but is not guaranteed accurate by the REALTORS® Association of Edmonton.