Listing Details

For more information on this listing or other please contact me.

Courtesy of Royal Lepage Premier Real Estate.
Data was last updated 2025-06-25 at 20:18:11 GMT

4365 51 Street   Gibbons, Alberta

$339,900
MLS®: E4477701
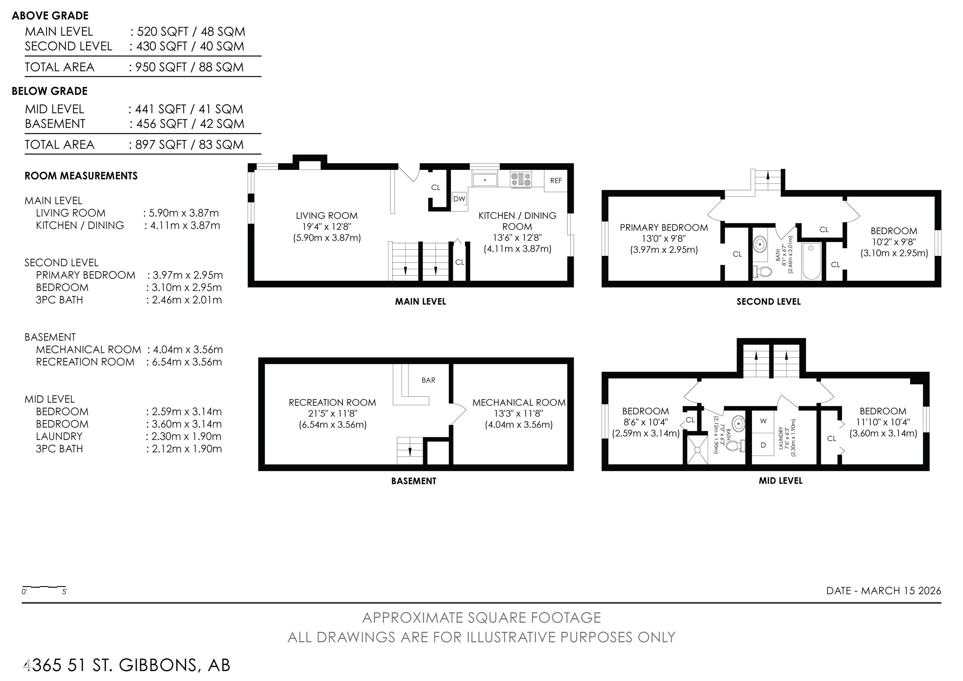
This affordable home is a standout opportunity, featuring a unique corner location with an oversized double detached (220V) garage with RV parking. Significant upgrades provide, including a new furnace (2025), roof (2021), and windows (2019). The interior feels bright and spacious thanks to open-beam vaulted ceilings in the living room, which is anchored by a cozy brick wood-burning fireplace. The functional layout includes a kitchen with a decent size eating area, four total bedrooms across two levels, and two full bathrooms. For extra versatility, the finished fourth level serves as a family or games room, offering massive crawlspace storage to keep everything organized. This property offers a fully landscaped backyard and quick access and walking distance to several parks in town and schools. With its great price and convenient location, it is an ideal choice for anyone seeking a short commute to the nearby military base. Some picture are virtually stages

This affordable home is a standout opportunity, featuring a unique corner location with an oversized double detached (220V) garage with RV parking. Significant upgrades provide, including a new furnace (2025), roof (2021), and windows (2019). The interior feels bright and spacious thanks to open-beam vaulted ceilings in the living room, which is anchored by a cozy brick wood-burning fireplace. The functional layout includes a kitchen with a decent size eating area, four total bedrooms across two levels, and two full bathrooms. For extra versatility, the finished fourth level serves as a family or games room, offering massive crawlspace storage to keep everything organized. This property offers a fully landscaped backyard and quick access and walking distance to several parks in town and schools. With its great price and convenient location, it is an ideal choice for anyone seeking a short commute to the nearby military base. Some picture are virtually stages

Listing Information

Prop. Type:
Detached Single Family
Property Style:
4 Level Split
Status:
Active
City:
Gibbons
MLS® Number:
E4477701
Bedrooms:
4
Neighbourhood:
Gibbons
Area:
Edmonton
Province:
Alberta
Listing Price:
$339,900

General Information

Year Built:
1978
Total Square Feet:
947ft2

Additional Information

Basement Dev:
Full, Partially Finished
Parking:
220 Volt Wiring, Double Garage Detached, Front Drive Access, Heated, Insulated, RV Parking

VIP-Only Information

Sign-Up or Log-in to view full listing details:
Sign-Up / Log In
This property is listed by Royal Lepage Premier Real Estate and provided here courtesy of Anna Trojanowicz. For more information or to schedule a viewing please contact Anna Trojanowicz.
Anna Trojanowicz
RealPageMaker Support
Phone: 780-232-0855
Mobile Phone: 780-232-0855
Inquire Via Email
Data is deemed reliable but is not guaranteed accurate by the REALTORS® Association of Edmonton.